KosenDakar - Sénégal - HM GROUP - Realty
1622
wp-singular,portfolio_page-template-default,single,single-portfolio_page,postid-1622,wp-theme-bridge,wp-child-theme-bridge-child,,vertical_menu_enabled,qode-title-hidden,side_area_uncovered_from_content,qode-content-sidebar-responsive,qode-child-theme-ver-1.0.0,qode-theme-ver-10.1.1,wpb-js-composer js-comp-ver-5.5.5,vc_responsive
kosen hm senegal

Kosen
Dakar – Sénégal

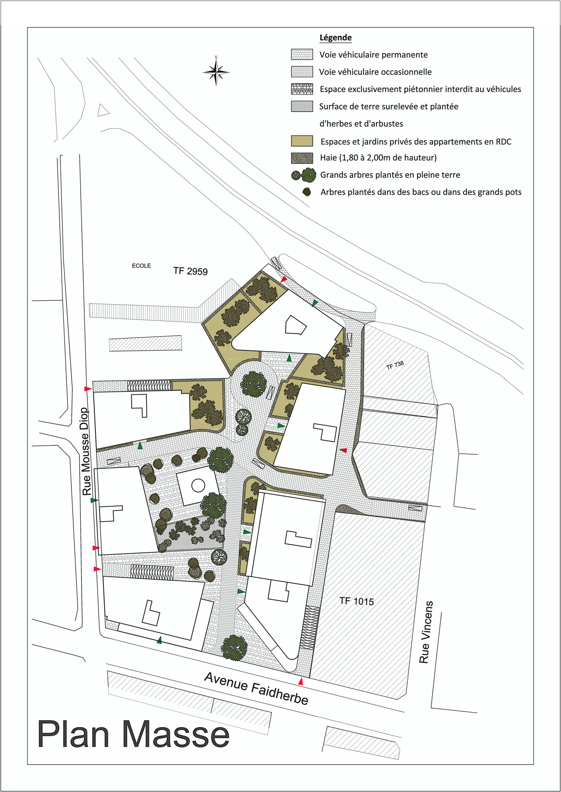
This Flagship project is located at the heart of Dakar, Senegal. With 75.000 sqm of BUA, “KOSEN” aims to create a micro neighborhood offering a range of high-end residential apartments in the saturated capital of Senegal. Situated on a 11 400 sqm land plot, the project comprises six residential buildings up to 15 floors, articulated around a green open space.

This state of the art and “green” complex tackles the environmental challenges of the region, and ensures the development of a social and functional mixity.

The project starts its journey with Kosen One, a two block building of 10 and 13 story high, offering 56 appartments of various sizes, 2 basement parkings, three commerces, a gym, and private lounge.

Category
All projects, Africa
TYPE

Real Estate Development

MORE INFORMATION

75000

Residential and commercial square meters

About This Project

Kosen
Dakar – Sénégal

This Flagship project is located at the heart of Dakar, Senegal. With 75.000 sqm of BUA, “KOSEN” aims to create a micro neighborhood offering a range of high-end residential apartments in the saturated capital of Senegal. Situated on a 11 400 sqm land plot, the project comprises six residential buildings up to 15 floors, articulated around a green open space.

This state of the art and “green” complex tackles the environmental challenges of the region, and ensures the development of a social and functional mixity.

The project starts its journey with Kosen One, a two block building of 10 and 13 story high, offering 56 appartments of various sizes, 2 basement parkings, three commerces, a gym, and private lounge.

Category
All projects, Africa
TYPE

Real Estate Development

MORE INFORMATION

75000

Residential and commercial square meters

About This Project
kosen hm senegal